
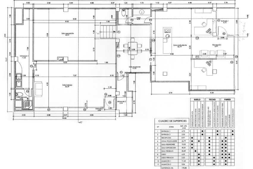
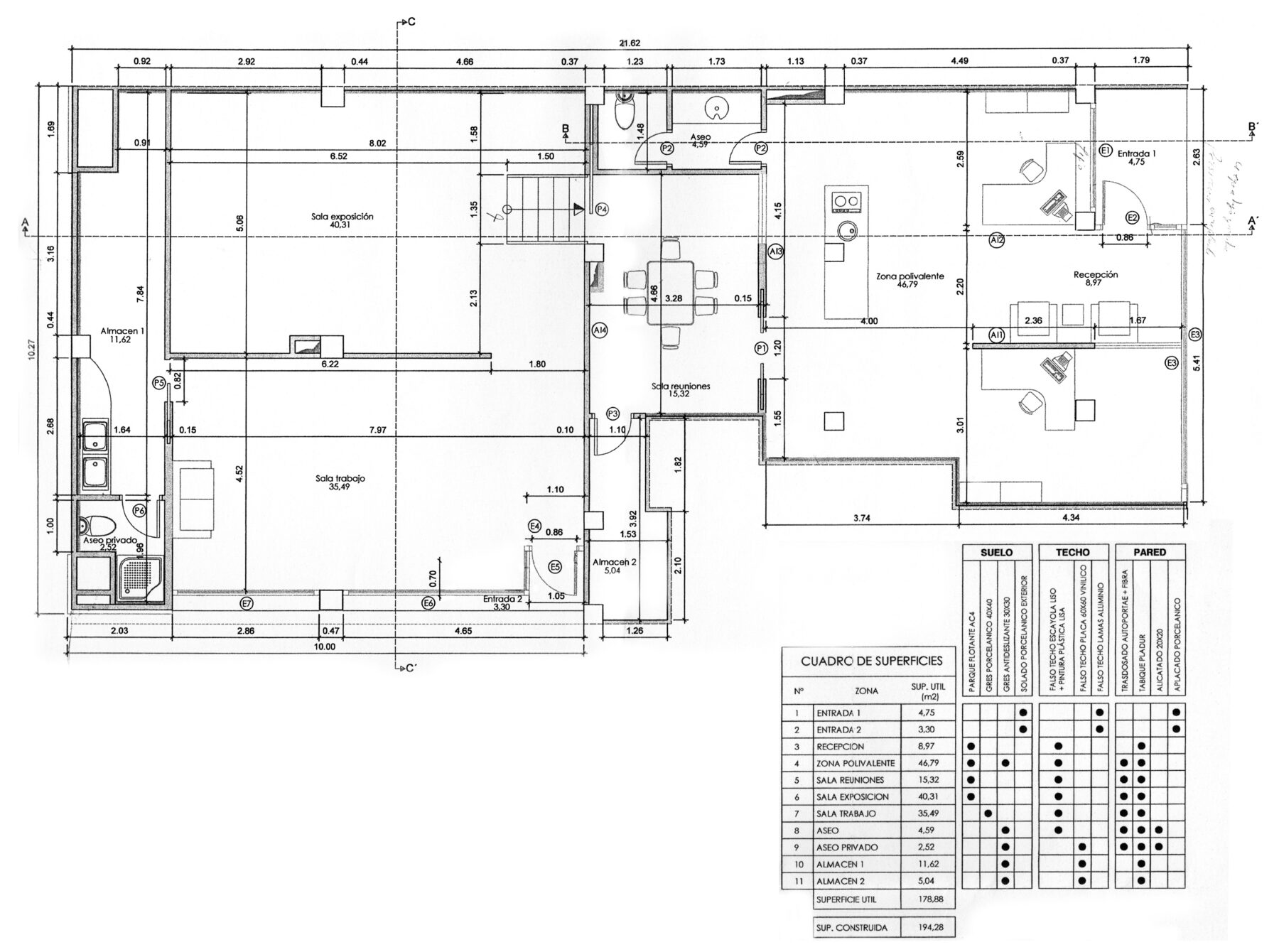
INMUEBLES PÉREZ GUERRERO vende o alquila amplio local de 194 m2, con dos accesos: uno por C/ Juan Sebastian Bach y otro por C/ Antonio Vivaldi.
Perfectamente ubicado en la zona más comercial de Rosales del Canal. Por un lado está junto al colegio y próximo al Mercadona, y por el otro lado está en una plaza con más locales tanto de hostelería como distintos comercios y servicios.
Próximo a la parada de autobús.
Es un local que tiene doble altura (5 escalones):
-a 2´77 mts. , el local se distribuye: zona de recepción de unos 9 m², amplia sala polivalente de 46´79 m², sala de reuniones de 15´32 m², almacén de 5 m² y aseo.
En esta zona, el suelo es laminado AC4 en roble.
-a 4´50 mts. de altura, se encuentran dos salas muy espaciosas, de 40´31 m² y 35´49 m², almacén de 11´62 m² y baño con ducha. También dispone de un amplio patio de unos 30 m2 con acceso desde la calle Antonio Vivaldi.
Aquí el suelo es en una parte laminado, y en otra parte gres.
El local dispone de aire acondicionado instalado independiente.
No para negocio de hostelería.
En alquiler: 1.600€/mes, y se piden 2 meses de fianza y referencias económicas.
Aviso:
El precio de venta indicado no incluye: impuestos (ITP/IVA/AJD), gastos notariales y registrales, ni honorarios de agencia por el servicio de intermediación inmobiliaria (gestión, asesoramiento y formalización del proceso de compra), los cuales se informan a los interesados con total transparencia y claridad antes de cualquier actuación.









































